fbpx

Presidente Roca 3563 – Venta

  • USD120.000
Presidente Roca 3563, Rosario, España y Hospitales

Resumen

Propiedad ID: SGL7881895
  • Galpón
  • Tipo de propiedad
  • 1
  • Ambiente
  • 0
  • Dormitorio
  • 1
  • Baño
  • 0
  • Cochera
  • 227.00
  • 227.00
  • Lote m²

Video

Descripción

Presidente Roca 3563
Galpón en esquina con ingreso vehicular

Descripción
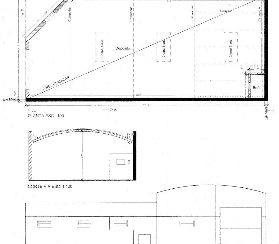
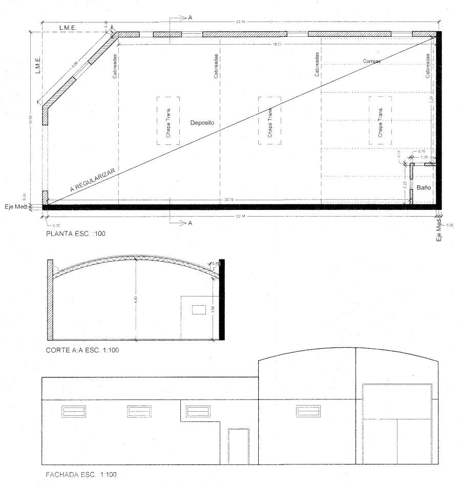
Galpón en venta ubicado en esquina estratégica, con frente sobre calle Roca y Pasaje Valdés, destacándose por su excelente accesibilidad, visibilidad y funcionalidad, ideal para múltiples destinos comerciales o industriales.La propiedad cuenta con portón de ingreso sobre calle Roca, apto para acceso vehicular, carga y descarga, lo que facilita la operatoria diaria. Su condición de esquina aporta mayor exposición y doble frente, optimizando tanto el uso operativo como el potencial comercial. El inmueble posee muy buenas dimensiones, con aproximadamente 10 metros de frente sobre calle Roca y 22,74 metros de fondo sobre Pasaje Valdés, conformando una superficie regular y fácilmente aprovechable. Su planta es amplia y versátil, permitiendo adaptarse a distintos usos como depósito, taller, logística, galpón operativo o desarrollo comercial. La distribución interna favorece una circulación fluida y aprovechamiento integral del espacio, con posibilidad de adecuación según necesidades específicas.

Ubicación
Ubicado en una zona consolidada de la ciudad, con rápidos accesos y buena conectividad, representa una excelente oportunidad tanto para uso propio como para inversión o desarrollo. Una propiedad que combina ubicación estratégica, funcionalidad y potencial, ideal para quienes buscan un espacio operativo con gran proyección.

Detalles

Actualizado en abril 19, 2026 a 2:55 pm
  • Propiedad ID: SGL7881895
  • Precio: USD120.000
  • Tamaño de la propiedad: 227.00 m²
  • Tamaño del terreno: 227.00 m²
  • Superficie cubierta: 227.00 m2
  • Frente: 22.74 m2
  • Fondo: 10.00 m2
  • Dormitorio: 0
  • Ambiente: 1
  • Baño: 1
  • Cochera: 0
  • Tipo de propiedad: Galpón
  • Estado de la propiedad: Venta
  • Dirección Presidente Roca 3563
  • Ciudad Rosario
  • Barrio España y Hospitales
  • País Argentina

Características

Propiedades relacionadas

Comparar listados

Comparar
Esteban
  • Esteban