fbpx

Zeballos 1219 – Venta

  • USD130.000
Zeballos 1219, Rosario, Centro

Resumen

Propiedad ID: SPH7483531
  • Oficina
  • Tipo de propiedad
  • 10
  • Ambientes
  • 0
  • Dormitorio
  • 2
  • Baños
  • 0
  • Cochera
  • 170.10

Video

Descripción

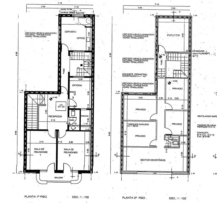
Zeballos 1219
Oficina de dos plantas con excelente distribución y ubicación privilegiada en el corazón de Rosario.

Descripción
Amplia oficina desarrollada en dos plantas, ideal para estudios profesionales, empresas de servicios, coworking o firmas que buscan una ubicación estratégica y espacios funcionales. El inmueble combina ambientes jerarquizados con excelente iluminación natural y ventilación cruzada, brindando un entorno de trabajo cómodo y profesional.
En el primer piso, el ingreso se realiza a través de una recepción principal que organiza el acceso a las diferentes áreas. Al frente se ubican dos amplias salas de reuniones con ventanales a la calle Zeballos y salida a balcón, lo que permite gran luminosidad y ventilación natural. Hacia el contrafrente se encuentra una oficina privada, un archivo, un baño completo y un sector de office y depósito, ideales para el funcionamiento cotidiano del personal administrativo.Una escalera interna conecta con la planta alta, donde se desarrolla un sector de escritorios abiertos pensado para trabajo colaborativo, junto con tres oficinas privadas que garantizan privacidad y concentración. Además, cuenta con un segundo baño y un depósito adicional, ofreciendo una distribución equilibrada entre espacios de uso común y privado.Toda la propiedad presenta una excelente calidad constructiva, con divisiones internas en tabiques Durlock, pisos resistentes al tránsito, aberturas con vidrios traslúcidos que aportan luminosidad sin sacrificar privacidad, y detalles que optimizan la funcionalidad de cada ambiente.
UbicaciónLa ubicación es inmejorable, sobre calle Zeballos, a metros de Bv. Oroño y Av. Pellegrini, con fácil acceso a Tribunales, Universidades, bancos, organismos públicos y gran variedad de servicios gastronómicos y comerciales. Esta propiedad se destaca por su versatilidad y potencial, pudiendo adaptarse a diferentes rubros y configuraciones según las necesidades del usuario. Ideal para empresas consolidadas o profesionales que buscan una oficina lista para ocupar, con una presencia institucional y estratégica dentro del centro rosarino.

Detalles

Actualizado en diciembre 5, 2025 a 5:45 am
  • Propiedad ID: SPH7483531
  • Precio: USD130.000
  • Tamaño de la propiedad: 170.10 m²
  • Superficie cubierta: 168.37 m2
  • Superficie semicubierta: 1.73 m2
  • Dormitorio: 0
  • Ambientes: 10
  • Baños: 2
  • Cochera: 0
  • Tipo de propiedad: Oficina
  • Estado de la propiedad: Venta
  • Dirección Zeballos 1219
  • Ciudad Rosario
  • Barrio Centro
  • País Argentina

Propiedades relacionadas

Comparar listados

Comparar
Guillermo
  • Guillermo